![]()
【 本 社 】
〒166-0012
東京都杉並区和田1丁目10番4号
電話:03-3384-2511
FAX :03-3384-2540
【山梨工場】 【山梨営業所】
〒407-0263
山梨県韮崎市穴山町三ッ石8807
電話:(0551) 22-7891 代表
FAX:(0551) 22-8625

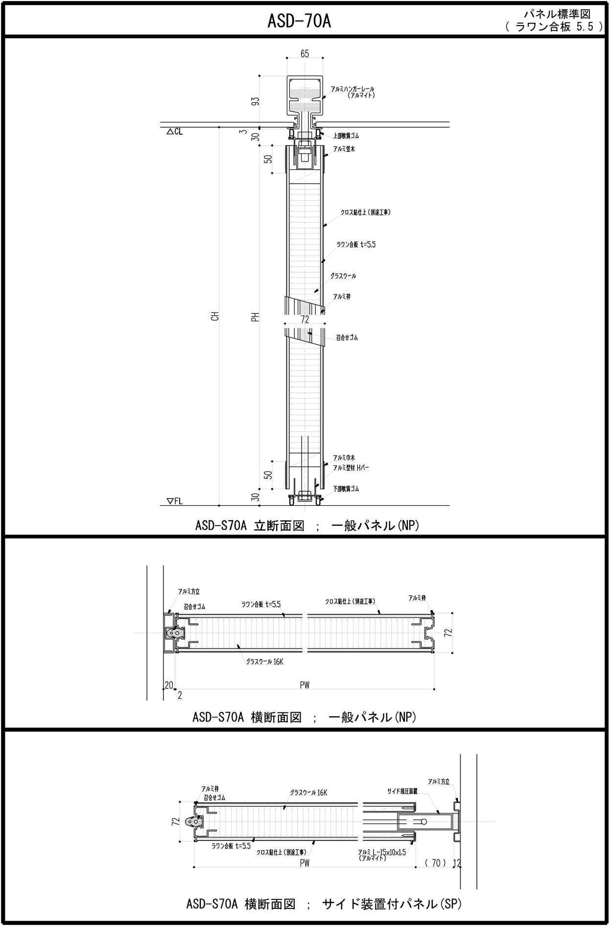
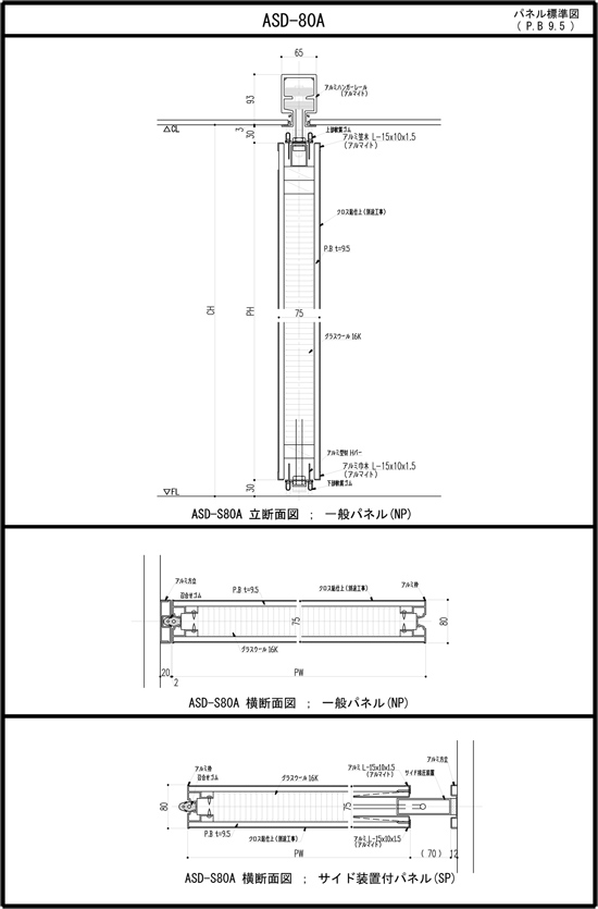
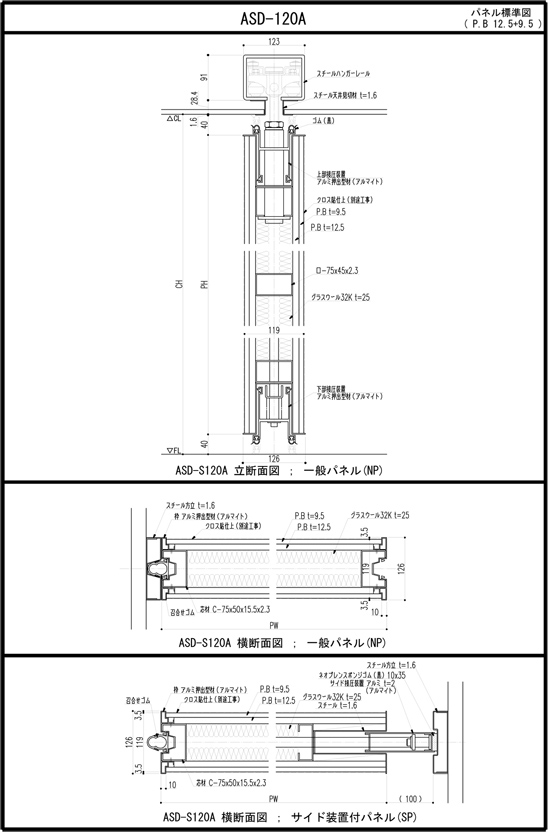
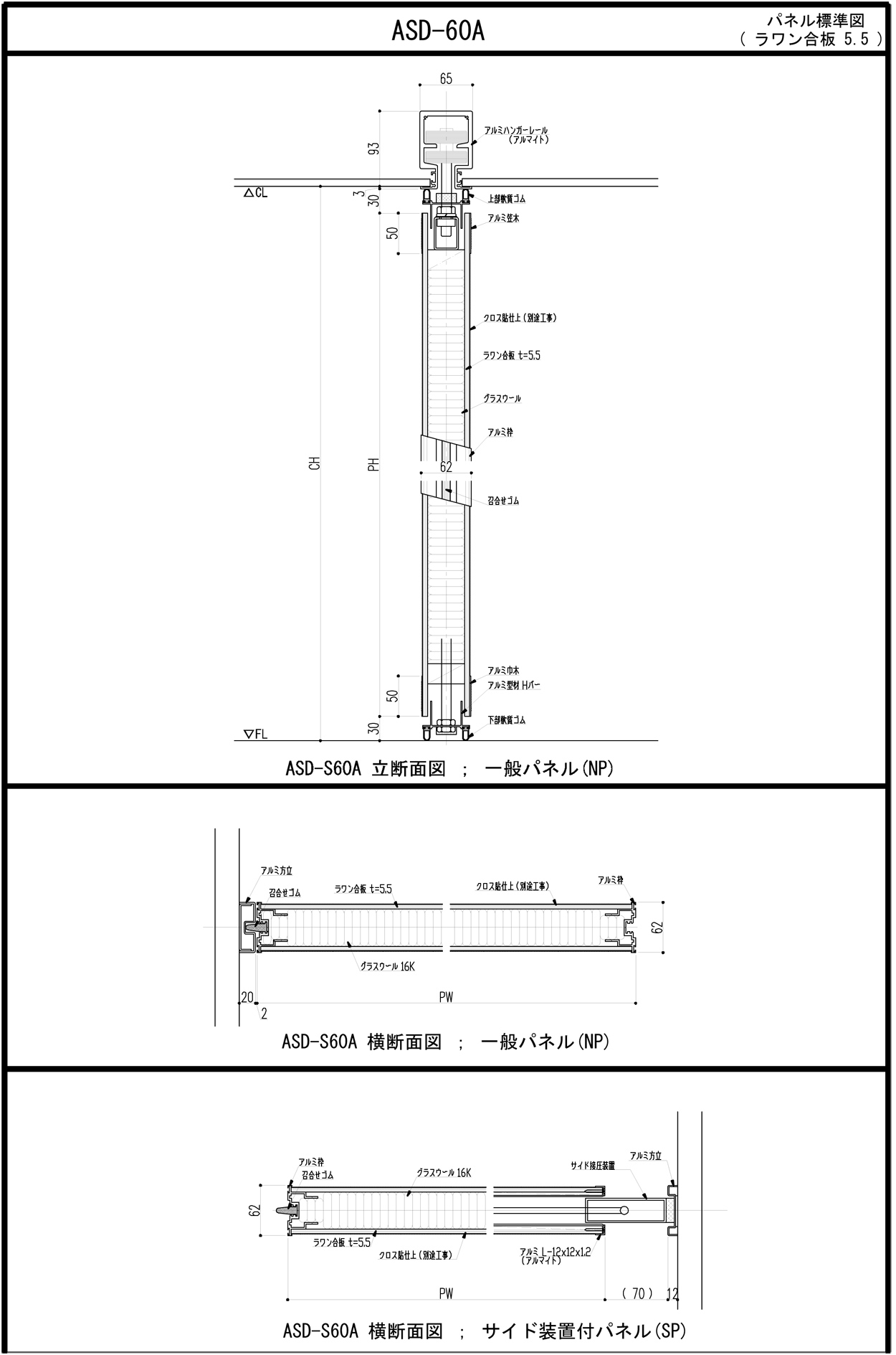
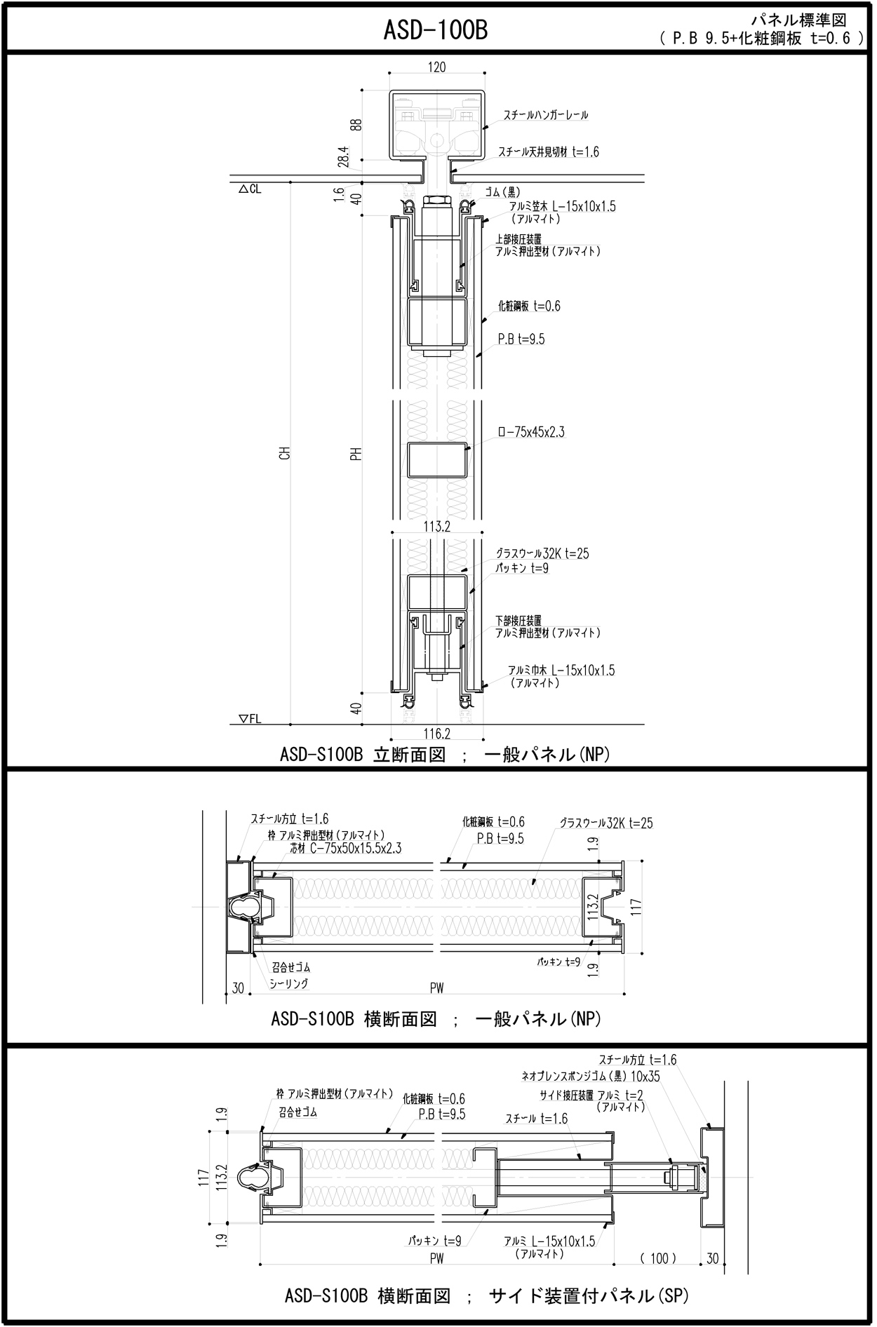
こちらでは、当社の技術資料をまとめたものを掲載しております。
上記リンクをクリックしていただきますと、各図面をご覧になる事ができます。
図面をクリックしていただきますと、大きなサイズのものが別ウィンドウにて表示されます。